中华人民共和国建材行业标准JC7992《天然大理石建筑板材》 本标准规定了天然大理石建筑板材(以下简称板材)的产品分类、技术要求、试验方法、检验规则、标志、包装、运输、贮存等。 本标准适用于建筑装饰用的天然大理石板材。 其他用途的天然大理石 以大理石的品种划分 命名原则不一 大理石通常按照 地质成因、有无花纹、主体色调 单层厚度、结晶粒度 硬度等方法进行分类 大理石品种的名称 是以颜色、花纹、质感和产地来命名的 (大理石) 大理市生产的大理石主要有三种 一为苍白玉,取产于苍山全白色的厨房已经过时,人们开始喜欢更柔和的薄荷色调。 年,我们大多数人待在家里的时间比以往任何时候都多,还花了很多时间装修和美化房屋的内部。 我们与室内设计专家就21年的流行趋势提供一些建议。 1
浅蓝色大理石纹理背景图片素材 浅蓝色大理石背景背景图案素材 Jpg图片格式 Mac天空素材下载
大理石色调
大理石色调- 装修浴室可以用大理石瓷砖么?听说用大理石就不好,为什么? 大理石淋浴房地面防滑有几种处理方法 浴室用什么防滑石好? 防滑大理石地面是如何防滑的 防滑大理石的选购方法有哪兰蔻大理石口红全部色号 3种甜美春日色调 时间: 编辑: 本站整理 1504 兰蔻大理石系列是19年春季限量,这个系列以粉色大理石纹路而为主要特色,非常粉嫩的外观引爆了众人的少女心,一起来看看全系列介绍吧。



Brandon产品鉴赏 爱丁堡灰 高雅的深灰偏咖色调 布兰顿瓷砖
题主好,条纹大理石装饰房子比较好看的是:棕色和绿色都不错,可以用深色 家具 平衡起来整个房间的色调,假如是高贵古朴建议棕色。 由于是地砖本来就会有偏冷的感觉建议门和家具使用暖色调,假如喜欢田园轻松点就绿色。 总之是采用生活化的暖色 黑色大理石纹理背景特写镜头 图片id: 版权:共享软件 发布时间: 未来素材网为设计师提供大量图片素材和矢量素材:黑色大理石纹理背景特写镜头图片,大理石,背景,大理石的纹理,白色背景,白色的大理石,大理石背景,石,黑色大理石,模式,纹理等,内容涵盖高清图片素材,摄 欢迎关注并分享:我爱简笔画! 转自设计系手绘网 手绘材质的区分手绘材质的特性,材质的纹理,要体现出材质的质感。而我们先把材质线稿画好,这就需要对材质的纹理有所了解,以及材质的受光面有所体现。 而马克笔刻画的就是
济宁瓷砖大理石_济宁瓷砖批发_济宁瓷砖厂家昂扬陶瓷 专注 瓷砖行业 批发 专注 瓷砖行业 厂家 微信1 微信2 微信3 咨询热线 400电话 电话号码 大理石开裂 的原因:1、 基础部分的沉降和撕裂导致石材裂损。2、 外来的破坏导致地面石材破损。 3、 从石质上讲选择大理石铺设就留下了后患。 一方面由于选择石材时往往只注重色调,而不去考虑大理石和花岗石在耐候性和耐磨性上的差异。 她家150㎡,全屋贴大理石,色调高度统一,却没有一点豪气感! 大理石在家装中,算是比较常见的材料了,也是成本比较高的材料。 选择局部使用,不仅实用及装饰性很强,成本也可以得到很好的控制。 可给全屋都贴上大理石,就比较少见了,毕竟成本摆在
灰色大理石地砖配什么颜色墙面好看? 冷色调地砖 起居室的大小不同,适合的色调也不同。 像小空间的起居室更适合冷色地砖。 如果客厅较小且光线较差,建议选择凉爽的颜色,如浅蓝色,以匹配地砖的颜色。 这种组合不仅在视觉上给人一种更清爽的感觉



大理石种类介绍 华诚石材



Mac夏季限定大理石纹泼墨系列眼影盘这个系列简直撞在我心口上了 试色 Mac 眼影盘 暖色调 魅可怎么样 修容 大理石 纹 种草 娜斯怎么样 眼影 夏天去哪玩 高光腮红 春天去哪玩 美妆 彩妆



大理石 木色 美出天際的材質混搭 每日頭條



她家150 全屋贴大理石 色调高度统一 却没有一点豪气感 腾讯新闻



大理石瓷砖 塞尚印象瓷砖官网



黑色大理石图片 黑色大理石素材图片大全 图司机



典格壁画大理石纹壁纸壁布大气暖色调轻奢电视背景墙沙发卧室墙纸



简约风大理石瓷砖家装效果图 将温馨的生活气息展露无遗 秀给网样板房图库



天然奢华 风格融合了大理石的漩涡或玛瑙的涟漪 为您带来奢华的效果 非常漂亮的画 艺术品 古老的东方绘画技术 柔和的色调 库存插图



五颜六色的大理石画 表面色调的艺术抽象大理石图案 大理石纹理背景可用于背景或墙纸 自然奢华 风格融入大理石漩涡照片 正版商用图片0swo39 摄图新视界



特写表面艺术色调抽象大理石图案在彩色大理石石墙壁纹理背景库存照片 立即编辑



简约风大理石瓷砖家装效果图 将温馨的生活气息展露无遗 秀给网样板房图库



大理石颜色怎么调 大理石调色对色技巧 Doho标准光源对色灯箱厂家



用粉红色色调大理石表面照片 正版商用图片0swe 摄图新视界



浅蓝色大理石纹理背景图片素材 浅蓝色大理石背景背景图案素材 Jpg图片格式 Mac天空素材下载



大理石 木色 无法拒绝的优雅住宅 一兜糖 家的主理人社区



天然大理石背景墙作为电视幕墙的好处 石材背景墙 电视背景墙 欧式罗马柱 大理石全屋定制 石材背景墙厂家 佛山漫美石材背景墙有限公司



深蓝色大理石 Rockstone Www Rockstone Biz



Brandon产品鉴赏 爱丁堡灰 高雅的深灰偏咖色调 布兰顿瓷砖



蓝色大理石背景



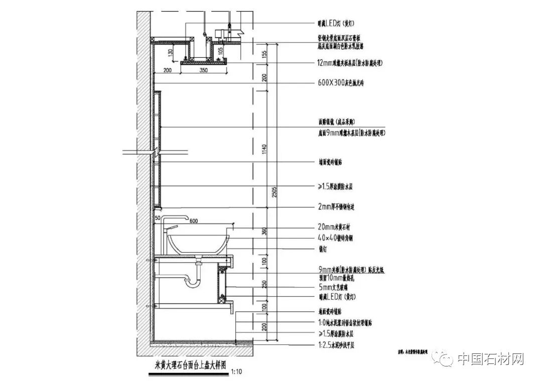
大理石洗手台3种节点图及案例欣赏 教育资讯网



天然大理石和人造大理石的区别 哪个更好 常见问题 中思诺



黑色大理石图片 黑色大理石素材图片大全 图司机



Givenchy 秋季彩妆新品8月1日上市来自大理石的魅惑 拔草哦



乳白色大理石图片 乳白色大理石素材下载 众图网



美丽的白大理石纹理图片素材 大理石纹理背景图案素材 Jpg图片格式 Mac天空素材下载



白玉兰大理石背景墙 高雅却不张扬 行业动态 瑞达石材



大理石特性及优点大理石评价鉴别方法



如何鉴别黑色大理石 黑色大理石种类介绍 手工艺品 行业资讯 志恒网络



奶油色主色调 白色大理石搭配金色装饰 我爱看围脖



風靡裝飾界的5大經典大理石色系 你家裝的是哪一款 每日頭條



深蓝色大理石 Rockstone Www Rockstone Biz



五颜六色的大理石画 表面色调的艺术抽象大理石图案 大理石纹理背景可用于背景或墙纸 自然奢华 风格融入大理石漩涡照片 正版商用图片0txn4o 摄图新视界



不同色系大理石装饰图集 简约实用又高级 每日头条



金色白色 大理石 这搭配 高级感上天了 柠檬资讯



粉红色色调中具有模糊效果的大理石背景库存照片 图片包括有油漆 艺术 反气旋 材料 作用



抽象古典蓝色大理石色调背景库存图片 图片包括有墙纸 色彩 海军 大理石 纹理 最小 格式



大理石图案纹理背景 表面与深蓝色库存照片 立即编辑



白色大理石种类及价格



粉色大理石图片大全 粉色大理石设计素材 粉色大理石模板下载 粉色大理石图库 昵图网soso Nipic Com



蓝色用在大理石上 一样高贵和深邃 世界石材网www World Stone Com



美丽的白大理石纹理图片素材 大理石纹理背景图案素材 Jpg图片格式 Mac天空素材下载



典格壁画大理石纹壁纸壁布大气暖色调轻奢电视背景墙沙发卧室墙纸



威尔斯大理石瓷砖 还原天然石材纹理 产品发布 威尔斯陶瓷 岩板官网



常见的7种米黄系列大理石



高档而不高调 黑钛大理石纹色 广东金满羊门业



波斯灰大理石 南京云水石材有限公司



攻略 粉色大理石装饰 见证奢华与甜美 上游新闻 汇聚向上的力量



風靡裝飾界的5大經典大理石色系 你家裝的是哪一款 每日頭條



8款大理石背景墙效果图 独享天然纹路的美 大理石



杭州大理石装饰设计公司怎样制作仿大理石纹油漆墙面 知识专栏 公司资讯 杭州石纪元梦园建材有限公司



客厅 米黄色调为空间整体色调 客厅与娱乐厅相结合 配有钢琴 米黄色大理石砖铺贴 米色墙纸铺贴搭配挂画 家居美图 装一网效果图



这几款色彩的大理石瓷砖 和夏天更配哦 大角鹿超耐磨大理石瓷砖开创者官网 陶瓷十大品牌



风靡装饰界的5大经典大理石色系 你家装的是哪一款 Part



白灰色为主色调 运用大理石装饰的豪华全屋定制设计



大理石纹路这么美 没学会搭配也是白搭 家装选材 武汉澳华装饰设计工程有限公司官方网站



像大理石般的色调搭配金属色 直接爆表 分 Crazywoman Crazybuy76 Facebook



捕捉闪电的大理石 闪电米黄 139石材网手机版



五颜六色的大理石画 表面色调的艺术抽象大理石图案 大理石纹理背景可用于背景或墙纸 自然奢华 风格融入大理石漩涡照片 正版商用图片0txkil 摄图新视界



大理石分色教程瓷砖地板分色ps分色通道木纹分色喷墨分色调色教程



四十二种大理石介绍说明 石材



蓝金沙 大理石 Bob体育 多特蒙德 官方赞助商 Bob体育 Bob体育 平台 Bob体育平台



白色大理石种类大全白色大理石特点



深蓝色大理石 Rockstone Www Rockstone Biz



新房装修大理石怎么选 金城瑞达石材有妙招 石材百科 瑞达石材



大理石洗手台3种节点图及案例欣赏 教育资讯网



软自然色调玫瑰金箔大理石图案river S Edge White Rose Gold Foil 一流设计网



像大理石般的色调搭配金属色 直接爆表 分 Crazywoman Crazybuy76 Facebook



背景大理石 不同颜色和色调的天然石头库存照片 图片包括有靠山 建筑 减速火箭 感激的 格朗基



深蓝色大理石 Rockstone Www Rockstone Biz



紫金水墨风大理石纹路素材 手机移动版



Jing Ven 大理石搭配原木 柔和的色调搭配 Facebook



复古的半色调大理石对角线纹理背景图片素材



洛可可风格厨房安装大理石台面吧台装修效果图米色调天然大理石台面吧台设计图 秀居网



客厅电视背景墙大理石和车边境组成 沙发背景墙也石材造型 整体色调以暖色为主 深色点缀 电视柜深色实 家居美图 装一网效果图



Valextra 新款大理石手柄 包扣心斋桥parco限定活动 Jstyle



双色调大理石移动屏幕矢量图片素材 素材 Eps图片格式 Mac下载素材下载



白色背景墙石材用白色的大理石做背景墙好看吗 朵拉利品网



蓝色水晶大理石图片背景素材免费下载 图片编号 六图网



大理石玫瑰色颜色纹理背景库存照片 图片包括有大理石 绿色 高雅 抽象 岩石 墙壁 本质



告诉您花岗岩大理石的室内色调搭配哪家好 五莲县正大石材有限公司



人造大理石颜色搭配技巧有哪些



现代风三居室装修 经典的木色与大理石结合 打造简约色调之家 太原装修公司 别墅装修设计 室内家装装饰效果图 满堂红装饰网



天然石材色调去皮和粘大理石外观马赛克瓷砖迷你风格的别墅和公寓装饰 Buy 仿大理石 马赛克瓷砖 天然石材的语气剥离和粘贴瓷砖 Minilist风格瓷砖的别墅和公寓装饰



五颜六色的大理石画 表面色调的艺术抽象大理石图案 大理石纹理背景可用于背景或墙纸 自然奢华 风格融入大理石漩涡照片 正版商用图片0txlui 摄图新视界



天然 人工 仿制 大理石怎么选 情感资讯 游戏百科



仿大理石背景墙丨你的家 差了一点高级感 艺术性



蓝色大理石背景



蓝色作为主色调的现代风格 舒适又清新 二十一经济报



仿大理石背景墙丨你的家 差了一点高级感 Mm艺术涂料



暖色天然大理石面板 深色和暖色的天然美丽大理石 大理石背景质地 特写库存图片 图片包括有材料 意大利语



西班牙的其他米黄色大理石 Litosonline



超过0 张关于 大理石纹 和 质地 的免费图片



白灰色为主色调 运用大理石装饰的豪华全屋定制设计



天然奢华 风格融合了大理石的漩涡或玛瑙的涟漪 为您带来奢华的效果 美丽的画 古老的东方绘画技术 柔和的色调 大理石漂白效应库存插图



天然 人工 仿制 大理石怎么选 情感资讯 游戏百科



长方形黑色大理石马赛克砖抛光马赛克砖浴室厨房墙面地砖 石材马赛克 产品中心 Huagui Mosaic Tile



海军蓝色调的大理石背景库存例证 插画包括有详细资料 自然 油漆 内部 高雅 作用 使有大理石花纹



表面的褐色色调与大理石照片 正版商用图片0c6iba 摄图新视界



大理石调色怎么调 大理石调色技巧 Pecolor配色软件


0 件のコメント:
コメントを投稿